Z型サポート
ステンレス t2.0×20mm t3.0×20mm F・B(sus304 コールド)
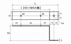
【型番について】
STB-Z●–▲
・●は板厚tを表します。2もしくは3mmからお選びください
・▲はM4のタップ穴の数を示し、▲が増える毎に40mm刻みでLが増していきます
単価は▲が増える毎に100円増しとなります。
いずれもご注文時にご指定ください。
例)t3、Lが60mmの場合 STB-Z3-1
・5個以上からご注文を承ります
・ご注文個数によって単価が異なります。詳しくは価格表をご覧ください
エストピ通販
